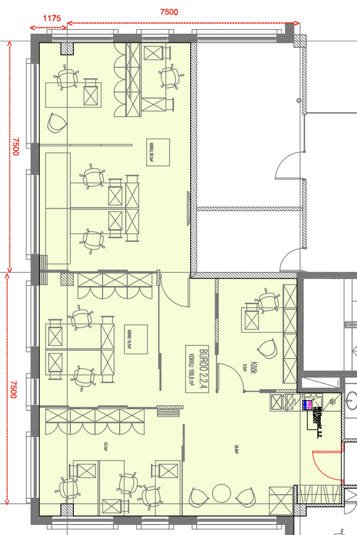
Üürile anda 123,8 m² suurune kaasaegne büroopind Metalli Maja ärihoone teisel korrusel.
Büroo sobib hästi ettevõttele, kes hindab kaasaegset töökeskkonda, head ligipääsetavust ja toimivat infrastruktuuri.
Metalli Maja on B-energiaklassiga ärihoone, mis asub Hipodroomi ristmiku vahetus läheduses, kiiresti arenevas äripiirkonnas, kus tegutsevad mitmed tehnoloogia- ja teenindusettevõtted.
RUUMI KIRJELDUS
• Kolm avarat ja valgusküllast tööruumi
• Tööruumid on eraldatud liigutatavate lõõtsvaheseintega, mis võimaldavad ruumilahendust paindlikult muuta. Kolme eraldi tööruumi asemel saab kujundada kaks ruumi või ühe suure avatud pinna
• Köök ja puhkeruum
• Ühiskasutatav koosolekuruum
• Ühiskasutatav üldpind
• Võimalus üürida lisaks 4,2 m² suurune laopind
MUGAVUSED JA TEHNILINE VARUSTUS
• Erinevad parkimisvõimalused hoone lähiümbruses
• Jalgrattaparkla
• 24/7 ligipääs hoonesse
• Välireklaami paigaldamise võimalus
• Kaasaegne sundventilatsioon ja jahutus
• Elektrooniline valvesüsteem
• Pind on vaba ja valmis koheseks kasutamiseks
ASUKOHT
Kristiine linnaosas, Hipodroomi ristmiku vahetus läheduses. Mugav ja kiire ühendus kesklinna, Mustamäe ning teiste linnaosadega. Lähedal asuvad bussipeatused tagavad hea ligipääsu nii töötajatele kui klientidele.
ÜÜRITINGIMUSED
Üürile lisanduvad kõrvalkulud ja käibemaks
Pakkumine on üürnikule vahendustasuta
Sooduspakkumine:
• Sõlmides üürilepingu enne 28.02.2026 kehtib esimesed kolm kuud üür -50%
6 €/m² + km.
• Alates neljandast kuust üür 12 €/m² + km.
Hoones ja piirkonnas on saadaval ka teisi erineva suurusega büroopindu.
Huvi korral jagan lisainfot ja korraldan meeleldi objekti külastuse.























Metalli 3, Tallinn
123.8 m2